Architecture and Interiors
Jhillai Fort External
Main Reception
Restaurant
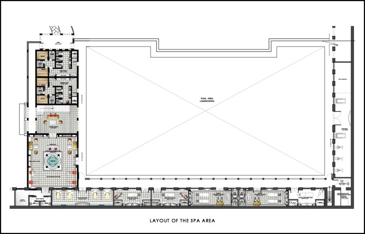
Spa Area
Heritage Wing
New Wing Suite
Spa Suite
Δ